
Memorial Justificativo
Identificação
Objeto: Duas residências sobrepostas, sendo uma para um casal de idosos e a outra para 3 a 4 pessoas em república.
Localização: Esquina da Rua Benjamin Monteiro com a Rua Joaquim Saraiva.Bairro: Tabajaras, Uberlândia – MG. Autor do Projeto: Melissa Machado e Núbia Silva
Objetivo: Duas residências sobrepostas, sendo uma para um casal de idosos e a outra para uma república de 3 a 4 pessoas.
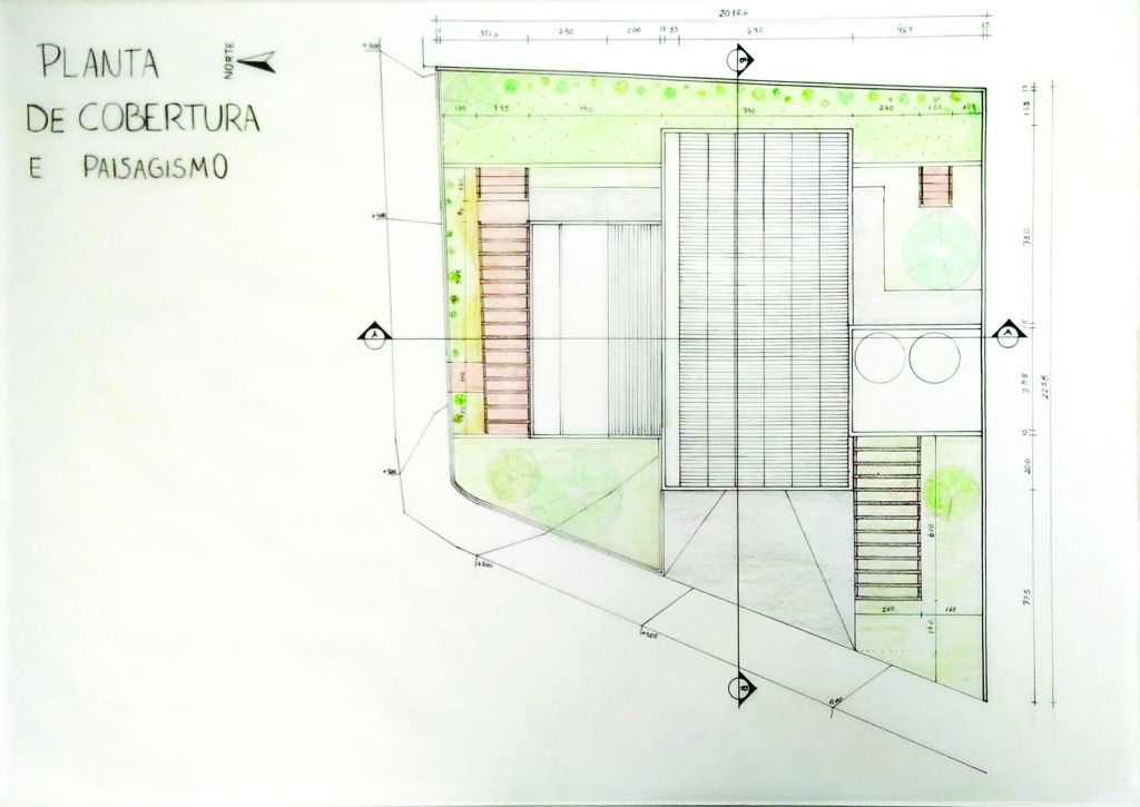
Diretrizes e Implantação: O projeto propõe a ocupação de um lote de esquina visando o aproveitamento da ventilação cruzada e iluminação natural, buscando seu melhor acesso para entrada de veículo e adaptação dos níveis topográficos.
Acessos: Foi criada uma torre de circulação, que dá acesso às duas residências e à garagem, essa também na mesma frente do terreno, para a Rua Benjamin Monteiro. Para a Rua Joaquim Saraiva, temos uma única entrada de pedestre para a Casa dos Idosos.
Recuos: Respeitou-se o recuo frontal obrigatório e o distânciamento de esquina conforme o Código de Obras de Uberlândia e a Lei de Uso e Ocupação do Solo vigente. Para a Rua Joaquim Saraiva também se acrescentou parte do terreno à calçada.
Partido Arquitetônico e Conceito: O projeto é caracterizado por linhas retas e volumes bem definidos. A intenção é que as duas casas formem um conjunto
harmônico, mas mantenham-se independentes, física e visualmente. A integração acontece por seu acesso na torre de circulação e por meio do paisagismo, que abraça as casas e contribuem para o conforto térmico dos ambientes.
Fachadas: Nas fachadas fica aparente a estrutura metálica e as vedações em tijolo solo cimento, nas aberturas, esquadrias de alumínio e vidro. Para fechamento de parte do terreno, utilizou-se grades de ferro.
Integração: A casa 01 (dos idosos), oferece uma integração em toda área social, incluindo a área de trabalho compartilhada, que também se abre para o exterior e para a rua. Já a casa 02 (república), também se integra na área social, e se abre para a rua e área externa.
Flexibilidade e Acessibilidade: A casa dos idosos foi pensada de forma a possibilitar a acessibilidade e adaptabilidade, através de uma planta de conceito aberto e respeitando o espaçamento para futuras modificações, caso necessário à circulação em cadeira de rodas. Na república o uso do banheiro adaptado, oferece mais opções de uso e compartilhamento, bem como para o quarto o uso de beliches duplica a capacidade do ambiente, oferecendo também espaço de armazenamento e juntamente com o corredor, tem-se opções de área de estudo além do ambiente do quarto.
Programa de Necessidades e Setorização
Garagem e Torre de Circulação: Garagem para 2 veículos integrada com a torre de circulação, composta por escadas e elevador, para acesso às duas casas.
Casa 01: Sala de estar integrada com cozinha, lavanderia, banheiros e quartos compartilhados e área de estudo. Espaço externo para secagem de roupas e socialização.
Casa 02: Sala de estar integrada com cozinha e com a área de trabalho
compartilhada. Já a lavanderia, o banheiros e o quarto são mais reservados e configuram-se em divisões físicas bem definidas.
Aspectos Construtivos e Sustentabilidade
Estrutura: Estrutura metálica com cargas pontuais e sapatas de concreto Fechamentos: Paredes em blocos solo cimento com tratamento hidrofugante, e esquadrias de alumínio e vidro.
Conforto Térmico: Previsão de ventilação natural por meio de janelas posicionadas de forma a garantir um ventilação cruzada. Na casa 01 um pergolado com trepadeira voltado para o norte contribui para a difusão da luz e calor no horário mais crítico da insolação. De igual modo na casa 02 um pergolado com cobertura de esteira de juta, reduz também a isolação da face norte, possibilitando sombreamento da área externa, para eventuais usos. O uso do bloco solo cimento também contribui para um ambiente mais fresco e respirável, contribuindo para o conforto térmico.
Sustentabilidade: Previsão de sistema de aquecimento solar e reservatório de reuso de águas pluviais para manutenção dos jardins.








Deixe um comentário